First Avenue, Ravenswing Park, Aldermaston, Reading, RG7

Offers in excess of £80,000 | SSTC

1 bedroom Bungalow Sold STC

or call 0118 9810494
Property Description

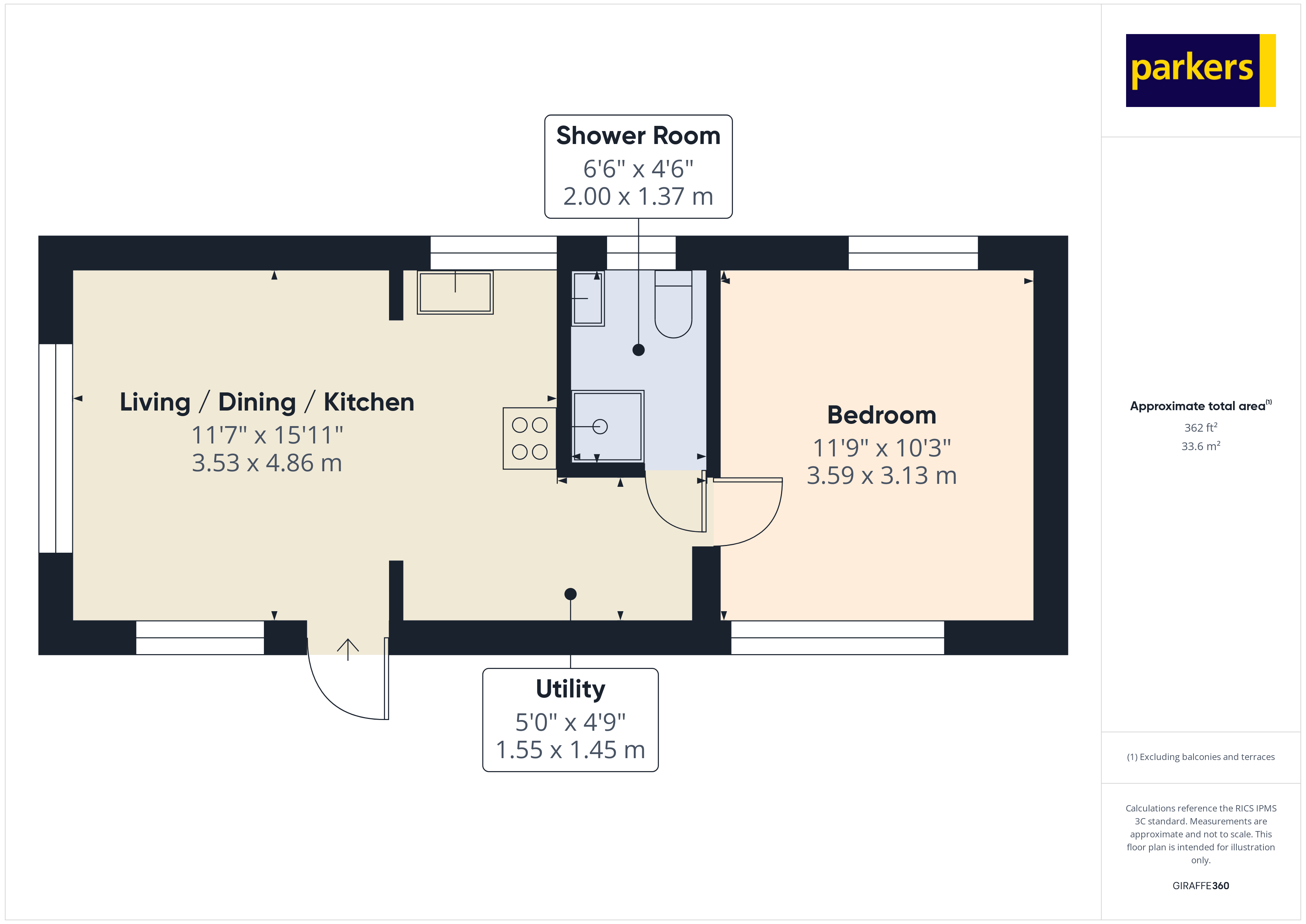
The open plan living space comprises of areas of lounge, dining and kitchen refitted with a range of storage units, an electric oven, electric hob and designated utility space. Further accommodation comprises of a double bedroom and three-piece bathroom shower room. Outside, the grounds wrap around the property are mainly laid to shingle, perfect for creating a potted garden. Local Authority - West Berkshire Council Tax Band - A Annual Estimate - £1546.10 Lease Term - N/A Annual Pitch Fee - £1878 Annual Water Charge - £240 Heating - LPG gas radiator central heating. Parking - unallocated carpark. Services available – LPG, electric, water and sewage through site owners. These particulars are a general guide only. They do not form part of any contract. Services, systems, and appliances have not been tested. The title is currently under review for any potential covenants or restrictions and will be available upon request shortly.


Additional Information
Tenure:
Leasehold

Mortgage calculator

Calculate Your Stamp Duty
£
Results
Stamp Duty To Pay:
Effective Rate:
Tax Band % Taxable Sum Tax

First Avenue, Ravenswing Park, Aldermaston, Reading, RG7

Struggling to find a property? Get in touch and we'll help you find your ideal property.