Kings Road, Newbury, Berkshire, RG14

£300,000 | SSTC

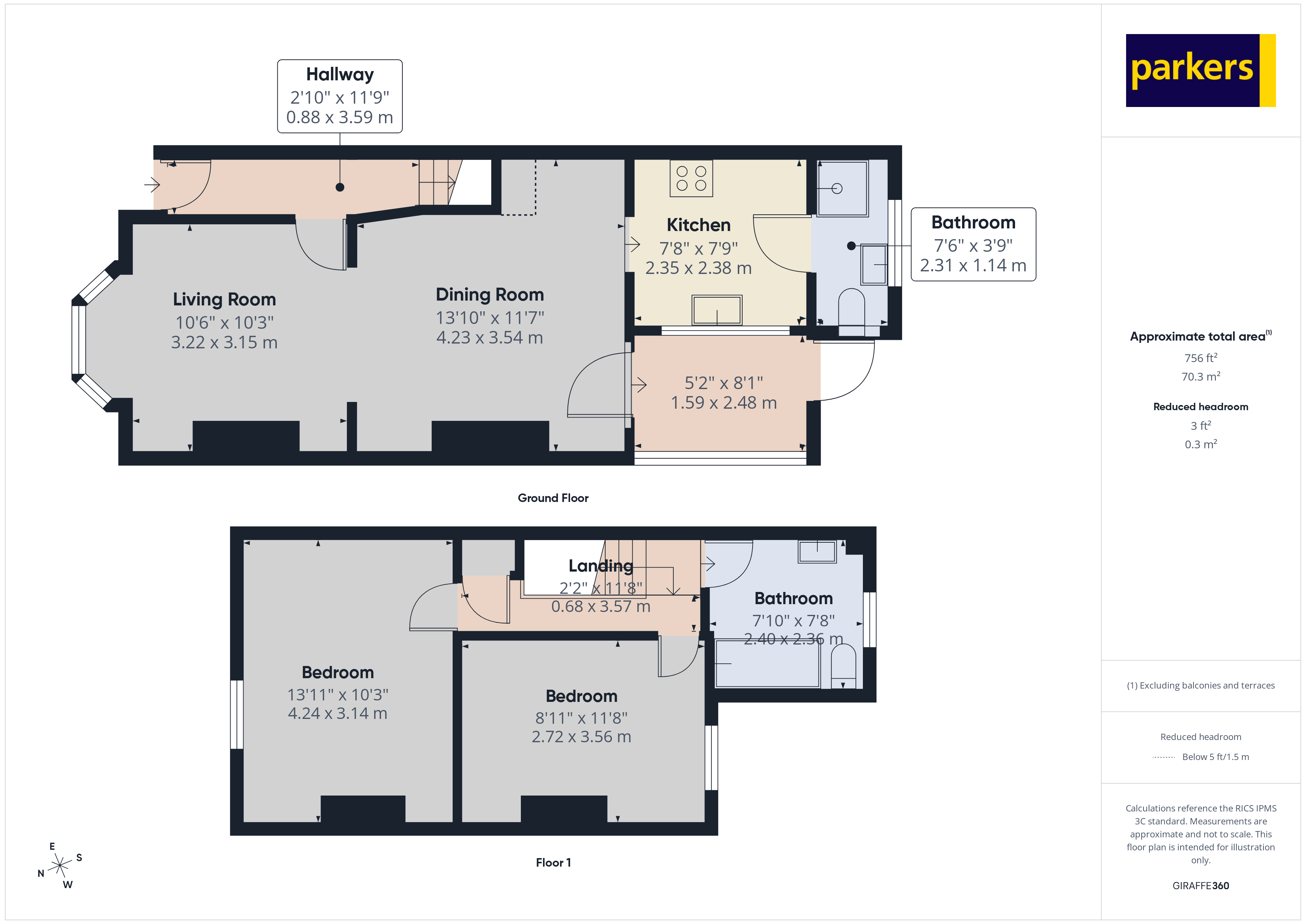
2 bedroom House Sold STC

or call 01635 200909
Standout Features

Property Description

A spacious two-bedroom terraced home ideally located within close proximity to Newbury town centre, offering generous accommodation and excellent potential for improvement. The property is offered to the market with no onward chain and represents a fantastic opportunity for buyers looking to modernise and add value. The ground floor features a particularly spacious, light-filled living and dining area which benefits from a sunny aspect, creating an ideal space for both everyday living and entertaining. The kitchen offers good proportions and scope for updating or reconfiguration to suit modern tastes. Upstairs, the property provides two well-sized double bedrooms, both offering ample space for furniture and storage. The existing bathroom would benefit from modernisation, while the layout also offers potential for a loft conversion (subject to the usual planning consents), allowing further accommodation to be created if desired. Externally, the property benefits from driveway parking located to the rear, a valuable feature for a home so close to the town centre. Its convenient position allows easy access to Newbury’s shops, restaurants, train station, and local amenities. In summary, this is a generously proportioned home in a highly sought-after location, offered with no onward chain and ideal for buyers seeking a property with scope to modernise, extend, and personalise close to Newbury town centre. These particulars are a general guide only. They do not form part of any contract. Services, systems and appliances have not been tested. The title is currently under review for any potential covenants or restrictions and will be available upon request shortly.


Additional Information
Tenure:
Freehold
Council Tax Band:
B

Utilities
Electricity:
Mains Supply
Sewerage:
Mains Supply
Heating:
Gas Central

Mortgage calculator

Calculate Your Stamp Duty
£
Results
Stamp Duty To Pay:
Effective Rate:
Tax Band % Taxable Sum Tax

Kings Road, Newbury, Berkshire, RG14

Struggling to find a property? Get in touch and we'll help you find your ideal property.