Whitedown Road, Tadley, Hampshire, RG26

Offers in excess of £290,000 | SSTC

2 bedroom House Sold STC

or call 0118 9810494
Property Description

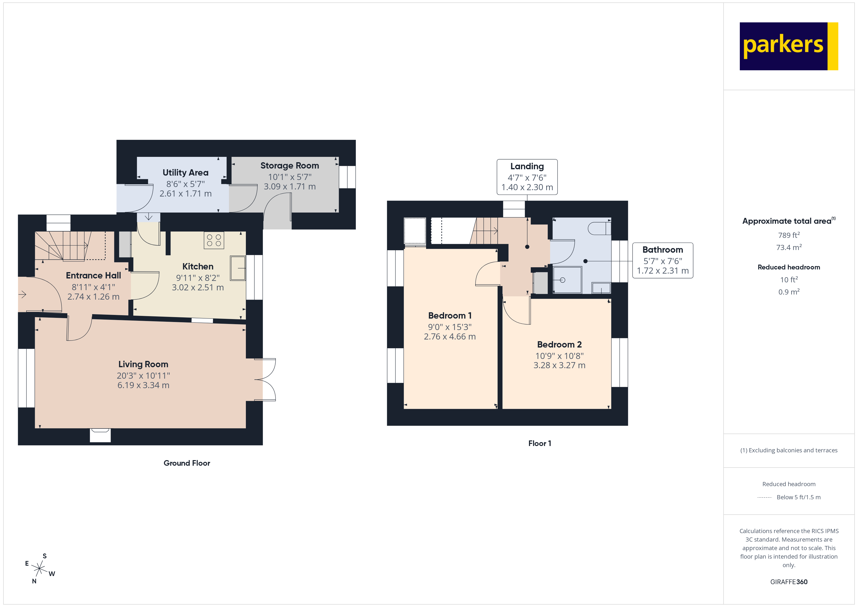
Front of property: Set back from the road, the property benefits from a generous block-paved driveway, providing ample off-road parking for multiple vehicles. The home has a smart and welcoming frontage, with a modern entrance door and side access leading to additional storage and utility space. Living Room: A spacious and well-presented living / dining room , offering a bright and comfortable living space ideal for both relaxing and entertaining. The room benefits from a large front-facing window which fills the space with natural light, while the rear patio doors open directly onto the delightful sun-trap garden, creating a wonderful indoor-outdoor flow, perfect for summer dining and enjoying the sunshine. The generous proportions allow ample space for both lounge and dining furniture, with a feature fireplace providing an attractive focal point to the room. Kitchen: A well-proportioned and functional kitchen fitted with a range of matching wall and base units providing ample cupboard and worktop space. The room benefits from a large window allowing for plenty of natural light, creating a bright and airy feel. There is space for a washing machine beneath the work surface and room for a freestanding oven/cooker, making it both practical and well suited to everyday living. Further space is available for additional appliances, with tiled splashbacks and easy-maintenance flooring completing the room. Utility / Storage Room: This highly functional space is cleverly partitioned to maximize organization and efficiency, making it an ideal addition for any home or business. The area is divided into two distinct zones: Dedicated Utility Section (2.6m x 1.7m): Perfectly sized for laundry appliances, a mudroom setup, or a centralized hobby station. Expansive Storage Area (3.0m x 1.7m): A generous footprint designed to accommodate heavy-duty shelving, seasonal gear, or bulk inventory. Bedrooms: A generously sized principal bedroom, beautifully bright and well-proportioned, offering ample space for a double bed and additional bedroom furniture. The room benefits from a large window allowing plenty of natural light to flood the space, creating a light and airy feel throughout. A particular feature of the room is the built-in storage wardrobe, providing excellent hanging and storage space while maximising the usable floor area. A comfortable and inviting room, perfectly suited as a spacious main bedroom. This inviting second double bedroom is defined by its sense of space and natural light. Whether you're looking for a peaceful guest room or a high-end home office, this space offers: A large window serves as the focal point, flooding the room with daylight and creating an airy, open feel throughout the day. Excellent utility is provided by floor-to-ceiling fitted white wardrobes, offering ample space for clothing and storage while maintaining a clean, modern aesthetic. The generous layout accommodates a double bed with room to spare for additional furniture or a vanity. Shower Room: The shower features high-quality folding glass doors, offering a wide, accessible entrance while keeping the floor plan open and unobstructed. A prominent wall-mounted chrome heated towel rail serves as both a stylish focal point and a practical essential, ensuring warm towels and a comfortable ambient temperature. The newly fitted washbasin sits atop a streamlined vanity unit, providing ample under-sink storage to keep your toiletries organized and surfaces clutter-free. Rear of property: The rear garden is a charming and well-maintained space, thoughtfully landscaped to create a peaceful outdoor retreat. A gravel pathway winds through the garden, bordered by a variety of mature plants, shrubs, and seasonal flowers that add colour and texture throughout the year. There is a delightful patio area, ideal for outdoor dining and entertaining guests, while the surrounding greenery provides a sense of privacy and tranquillity. Perfect for both relaxing and social occasions, this garden offers a wonderful extension of the living space. Local Authority – Basingstoke And Deane Council Tax Band - C Annual Council Tax - £1,909 Heating - Electric wall heaters, Gas fire. Parking – Driveway parking,. Utilities – Mains sewerage, water and electric, gas. Connectivity: The area offers ultrafast broadband availability (up to 2000 mb/s) and mobile coverage across O2, EE, three and Vodafone networks. Location & Amenities Education: Several "Good" Ofsted rated primary schools are nearby, including Burnham Copse (0.4 miles), Tadley Community (0.7 miles), and Bishops Wood (0.9 miles). The Hurst School (1.2 miles) is the closest secondary school and holds a "Good" Ofsted rating. Transport: Excellent local bus links are available at Huntsmoor Road within walking distance and for rail commuters, Aldermaston Rail Station (3.54 miles) and Bramley Rail Station (3.57 miles) are within short driving distance. Daily Essentials: A short walk away, the heart of Tadley offers a wealth of local amenities. Healthcare services are easily accessible at Morland Surgery, alongside a local library and a variety of independently owned stores for daily essentials. The area boasts a vibrant selection of takeaways and a charming village café, while larger weekly shops are well-catered for with both Sainsbury’s and Lidl conveniently close by. Leisure Facilities Tadley Health and Fitness centre (RG26 3LA): Features a gym and 25m swimming pool with a moveable floor and offers lane swimming, lessons, and Family fun sessions. The Hurst leisure centre (RG26 5NN): Provides a gym and studio, a snooker room and hireable sports courts for Badminton, Squash, Pickleball and Table tennis. Tadley Park (RG26 3PX): Offers a skate park, children’s play area, and enclosed courts suitable for football, basketball, and tennis. Bishopswood Golf Club (RG26 4AT): Recognised as one of the top 9-hole venues in the South of England, the grounds also house a floodlit driving range and clubhouse. These particulars are a general guide only. They do not form part of any contract. Services, systems, and appliances have not been tested. The title is currently under review for any potential covenants or restrictions and will be available upon request shortly. AML Check Fee Disclaimer In accordance with anti–money laundering (AML) regulations, all buyers are required to undergo identity and compliance checks. Please note that an AML check fee of £25.00 will be charged to each buyer as part of this process. This fee is non-refundable and payable prior to the release of sales memorandums or progression of any transaction.


Additional Information
Tenure:
Freehold
Council Tax Band:
C

Utilities
Electricity:
Mains Supply
Sewerage:
Mains Supply
Water:
Heating:
Double Glazing,
Electric

Mortgage calculator

Calculate Your Stamp Duty
£
Results
Stamp Duty To Pay:
Effective Rate:
Tax Band % Taxable Sum Tax

Whitedown Road, Tadley, Hampshire, RG26

Struggling to find a property? Get in touch and we'll help you find your ideal property.