Spey Road, Tilehurst, Reading, Berkshire, RG30

£390,000 | Available

3 bedroom House For Sale

or call 0118 9422112
Standout Features

Property Description

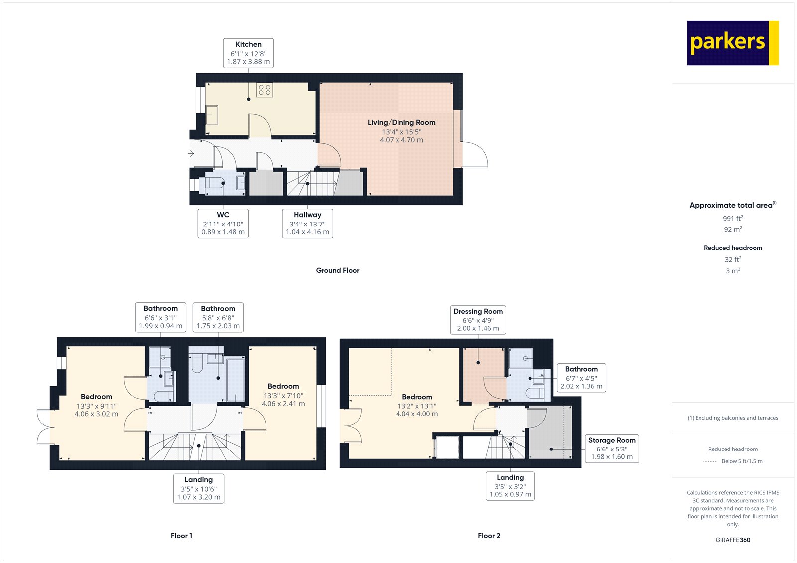
Set over three floors the smartly presented accommodation includes: an entrance hallway, a living/dining room, cloakroom and a stylish kitchen. To The First floor there are two double bedrooms one of which is en-suite and a modern bathroom. To the top floor there is a landing space with a storage room, large double bedroom with dressing room area and another en-suite bathroom for that extra convenience. Out to the rear there is a private enclosed landscaped garden very easy to maintain with small patio space and artificial grass completing the rest. The home is within easy reach of Reading Town centre, popular schools with St Michael's & English Martyrs School both within 0.5 miles of the property & secondary options like King's Academy Prospect 1.0 mile & Blessed Hugh Faringdon within 1.3 miles away, shops, supermarkets and regular bus services all within walking distance of the property. At the time of Instruction we have been advised by the vendors of the following information: Services Available: Gas central heating, Electric & Mains drainage. Council Tax Band D (Reading Borough Council) £2,487.11 P/A. The above information may be subject to change during the transaction period


Additional Information
Tenure:
Freehold
Council Tax Band:
D

Utilities
Electricity:
Mains Supply
Sewerage:
Mains Supply
Heating:
Gas

Mortgage calculator

Calculate Your Stamp Duty
£
Results
Stamp Duty To Pay:
Effective Rate:
Tax Band % Taxable Sum Tax

Spey Road, Tilehurst, Reading, Berkshire, RG30

Struggling to find a property? Get in touch and we'll help you find your ideal property.