Craysleaze, Kidmore End, Reading, Oxfordshire, RG4

£500,000 | Available

2 bedroom House For Sale

or call 0118 947 7373
Standout Features

Property Description

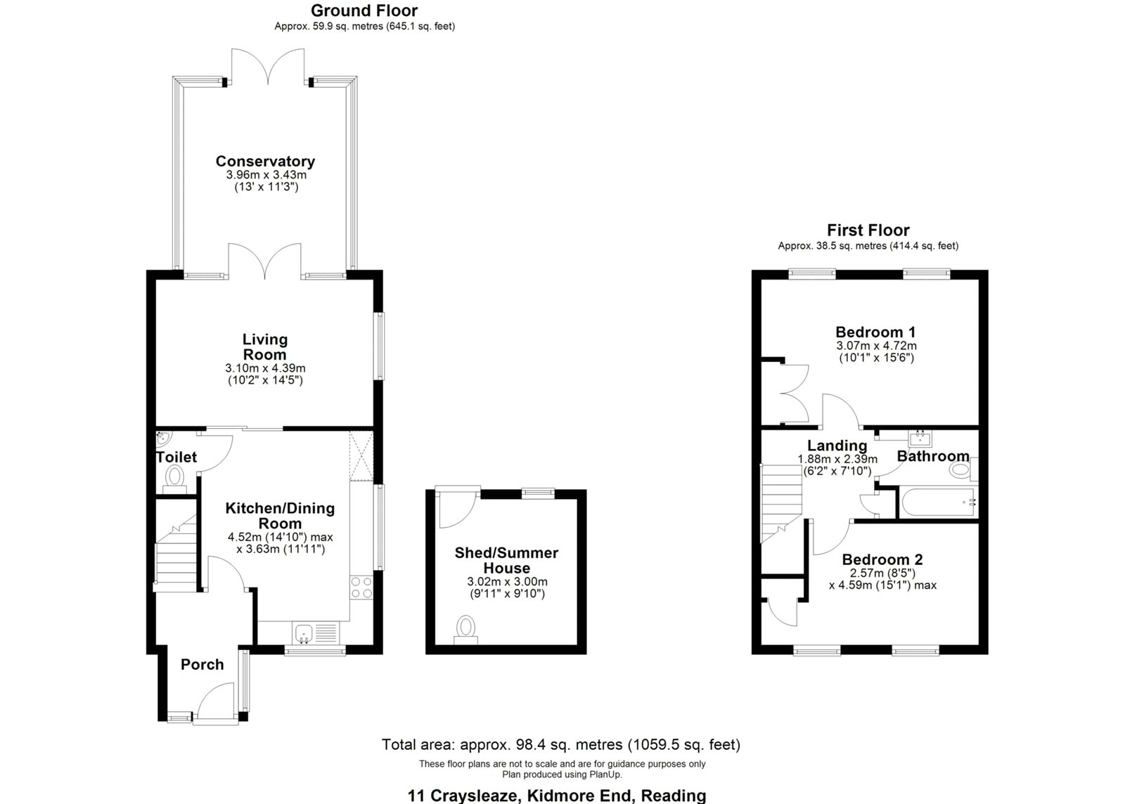
The stunning accommodation to the ground floor comprises of an entrance hall, modern kitchen/breakfast room with fitted appliances and underfloor heating, stylish wc, generously sized living room which leads into a gorgeous conservatory which allows natural light to pour through and also has the benefit of a log burner. To the first floor there is a modern family bathroom and two fantastic sized double bedrooms, both have built in wardrobes. Externally the property continues to impress with ample driveway parking to the front, driveway parking to the rear and a superb wrap around garden which could offer the potential to extend subject to the usual planning permissions. The property is positioned on a quiet cul-de-sac in Kidmore End which offers a local school, pub and has an abundance of green space on your doorstep yet is still within easy reach of Caversham, Reading and Henley-on-Thames. Properties like this are rarely available and viewing is highly recommended. Council Tax Band D


Additional Information
Tenure:
Freehold
Council Tax Band:
D

Mortgage calculator

Calculate Your Stamp Duty
£
Results
Stamp Duty To Pay:
Effective Rate:
Tax Band % Taxable Sum Tax

Craysleaze, Kidmore End, Reading, Oxfordshire, RG4

Struggling to find a property? Get in touch and we'll help you find your ideal property.