Water Road, Reading, Berkshire, RG30

Offers over £425,000 | Available

2 bedroom House For Sale

or call 0118 9422112
Standout Features

Property Description

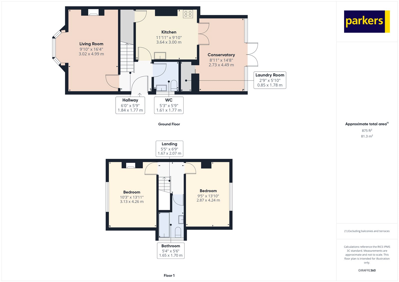
Presented in smart order throughout, this well-maintained two bedroom home offers spacious, flexible living accommodation arranged over two floors. The welcoming entrance hallway leads to a generous living room with attractive bay window. At the heart of the home is a well-proportioned kitchen, opening to a bright conservatory that serves as a perfect dining or family area with views over the garden. Additional ground floor features include a convenient WC and useful laundry room. Upstairs, the property benefits from two double bedrooms and a modern bathroom, all accessed from a central landing. One of the bedrooms is particularly generous in size and offers the potential to be subdivided with the addition of a stud partition wall, creating a third bedroom if desired. Both bedrooms offer ample space for storage. Outside, the split-level rear garden is a real highlight, featuring a paved patio ideal for outdoor seating and a lawned area perfect for children or pets, with a pathway running alongside for easy access. Side access is available, providing further practicality for garden maintenance or storage. The area is well-served by an extensive bus network connecting to Reading Town Centre, Tilehurst Central as well as being 1.9 Miles from Tilehurst Station with links to Reading & London Paddington & Just 1.0 Mile to Reading West Station. At the time of Instruction we have been advised by the vendors of the following information: Services Available: Gas Central Heating, Electric & Mains drainage. Council Tax Band C (Reading Borough Council) £2,210.76 P/A. The above information may be subject to change during the transaction period In accordance with anti–money laundering (AML) regulations, all buyers are required to undergo identity and compliance checks. Please note that an AML check fee of £25.00 will be charged to each buyer as part of this process. This fee is non-refundable and payable prior to the release of sales memorandums or progression of any transaction.


Additional Information
Tenure:
Freehold
Council Tax Band:
C

Utilities
Electricity:
Mains Supply
Sewerage:
Mains Supply
Water:
Heating:
Gas

Mortgage calculator

Calculate Your Stamp Duty
£
Results
Stamp Duty To Pay:
Effective Rate:
Tax Band % Taxable Sum Tax

Water Road, Reading, Berkshire, RG30

Struggling to find a property? Get in touch and we'll help you find your ideal property.