Macs Close, Padworth, RG7 5FN, RG7

Offers over £325,000 | Available

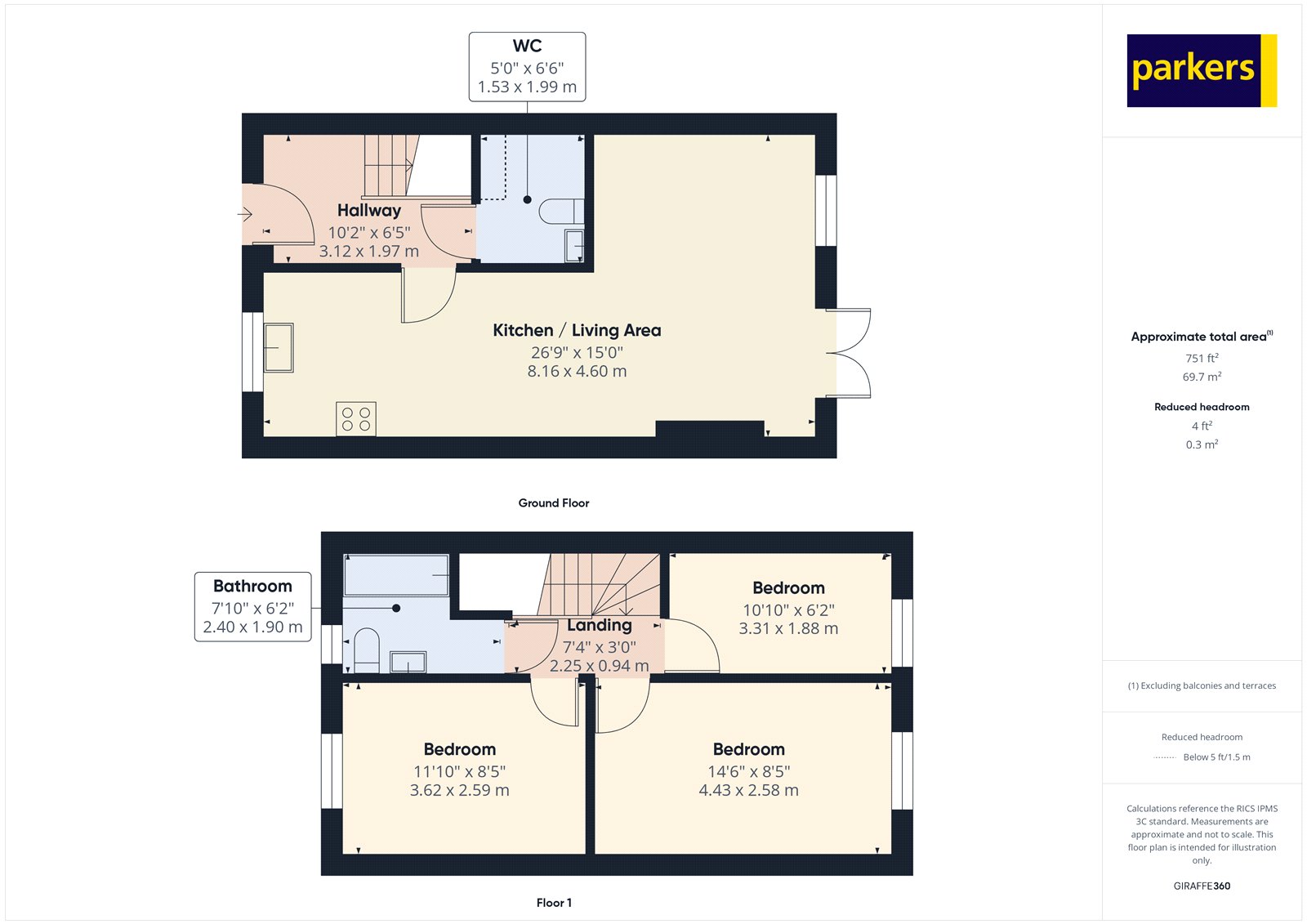
3 bedroom House For Sale

or call 01189 841841
Standout Features

Property Description

Located roughly equidistant between Reading and Newbury the property is well placed to take advantage of all the region has to offer. Junction 12 of the M4 is a short 7 minute drive away as is the bustling village of Theale and its mainline station, Aldermaston station is just 1 Mile away. The property also enjoy miles of countryside and canal sidewalks on its doorstep. Built 10 years ago, this beautifully maintained three-bedroom home has been owned and cared for by the current owners since 2018. Over the years, they have made thoughtful improvements including new carpets, a reconfigured downstairs W/C, and new turfing in the garden. Upon entering, you’re immediately struck by how light, airy, and well-flowing the accommodation feels. The entrance hall opens into a spacious open-plan living area, featuring a modern dual-aspect kitchen and a comfortable living/dining space large enough to accommodate a family dining table. The generous downstairs W/C has also been designed to double as a useful utility area, with space for a washer and dryer. Upstairs, there are three well-proportioned bedrooms and a stylish modern family bathroom, offering ample space for families or professionals. Outside, the south-facing rear garden has been attractively landscaped with patio and artificial lawn, perfect for relaxing or entertaining. A rear gate provides convenient access to the property’s two allocated parking spaces. This property offers an excellent opportunity to acquire an immaculately presented and thoughtfully improved three-bedroom family home in a convenient and desirable location. Council Tax - West Berkshire Band - D - £2,336.20 2025/26 Services Available - Mains Drainage, Electricity, LPG Gas Schools: Beenham Primary School - 1.3 Miles away Woolhampton C.E Primary School - 2 Miles Away Theale C.E Primary School - 2.5 Miles away Theale Green School - 2.5 Miles away Willink School - 2.6 Miles away


Additional Information
Tenure:
Freehold
Council Tax Band:
D

Utilities
Electricity:
Mains Supply
Sewerage:
Mains Supply
Heating:
Gas

Mortgage calculator

Calculate Your Stamp Duty
£
Results
Stamp Duty To Pay:
Effective Rate:
Tax Band % Taxable Sum Tax

Macs Close, Padworth, RG7 5FN, RG7

Struggling to find a property? Get in touch and we'll help you find your ideal property.