Blundells Road, Tilehurst, Reading, Berkshire, RG30

£450,000 | Available

3 bedroom House For Sale

or call 0118 9422112
Standout Features

Property Description

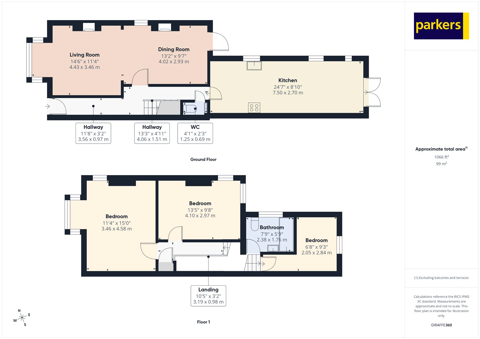
Set over two floors this beautifully refurbished three bedroom semi detached home offers stylish, move in ready living just 0.3 miles from Tilehurst Village, perfect for buyers wanting convenience and a smart modern finish. On the ground floor you enter via the long hallway entrance, to your left the front living room with bay-fronted window, a kitchen that opens directly onto the rear garden for easy indoor outdoor living & conveniently a downstairs cloakroom. Upstairs, three well presented bedrooms and a modern family bathroom provide comfortable accommodation for couples or young families. Outside, the property benefits from on street parking to the front, valuable gated side access and an attractive, enclosed rear garden. Location wise Blundells Road is just 0.3 Miles to Tilehurst Village, walking distance to local bus stops taking you into Tilehurst or Reading Town Centre. The property is within 1.2 miles to Tilehurst Station and local primary schools like Moorlands Primary within 0.4 miles & Wilson Primary School 1.6 Miles. Secondary School options close by are Little Heath School within 1.7 miles with The Wren 2.4 miles & lastly Hugh Farringdon 2.5 miles. At the time of Instruction we have been advised by the vendors of the following information: Council Tax Band C (Reading Borough Council) £2,210.76 P/A. Services available – Electric, Gas, main drainage The above information may be subject to change during the transaction period. These particulars are a general guide only. They do not form part of any contract. Services, systems and appliances have not been tested. In accordance with anti–money laundering (AML) regulations, all buyers are required to undergo identity and compliance checks. Please note that an AML check fee of £25.00 will be charged to each buyer as part of this process. This fee is non-refundable and payable prior to the release of sales memorandums or progression of any transaction.


Additional Information
Tenure:
Freehold
Council Tax Band:
C

Utilities
Electricity:
Mains Supply
Sewerage:
Mains Supply
Heating:
Gas

Mortgage calculator

Calculate Your Stamp Duty
£
Results
Stamp Duty To Pay:
Effective Rate:
Tax Band % Taxable Sum Tax

Blundells Road, Tilehurst, Reading, Berkshire, RG30

Struggling to find a property? Get in touch and we'll help you find your ideal property.