Roundfield, Upper Bucklebury, Reading, Berkshire, RG7

Offers over £340,000 | Available

3 bedroom Land (Residential) For Sale

or call 01189 841841
Standout Features

Property Description

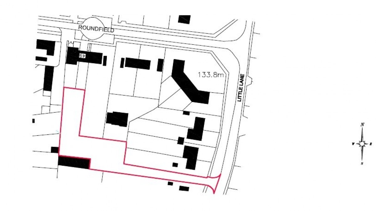
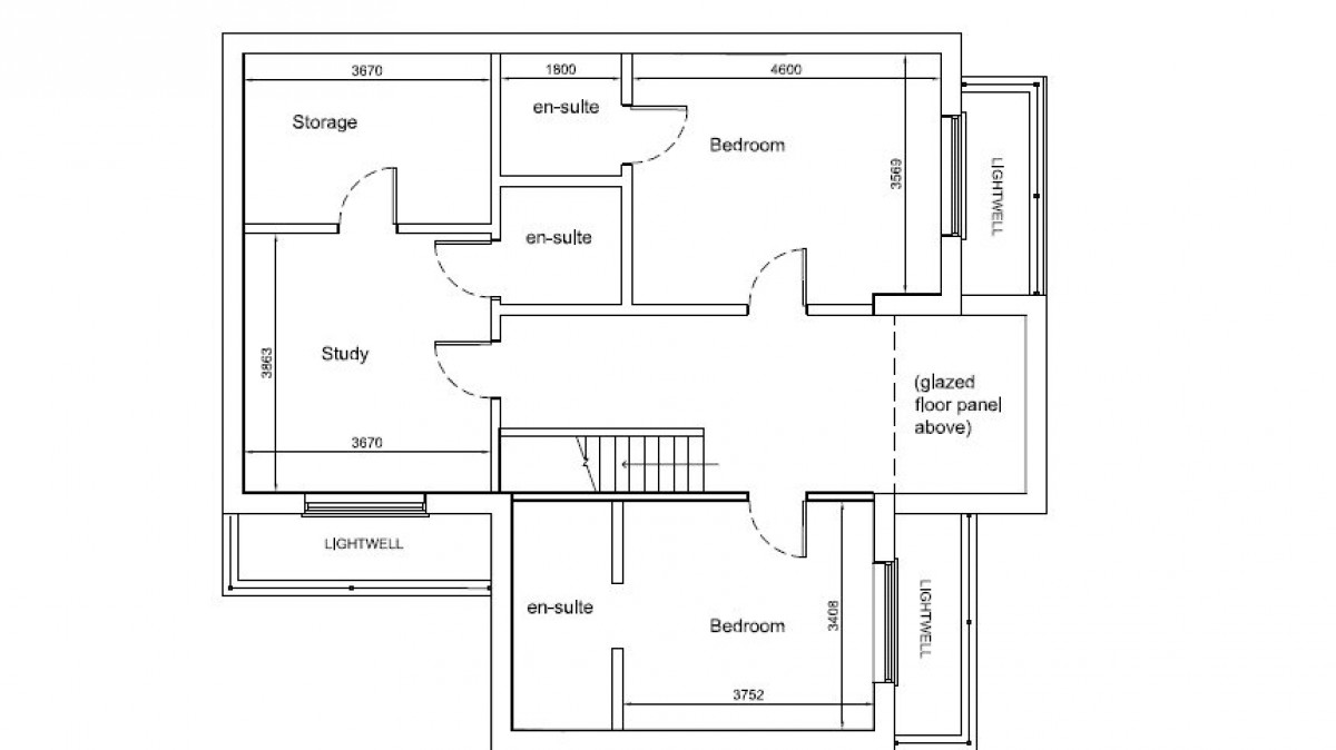
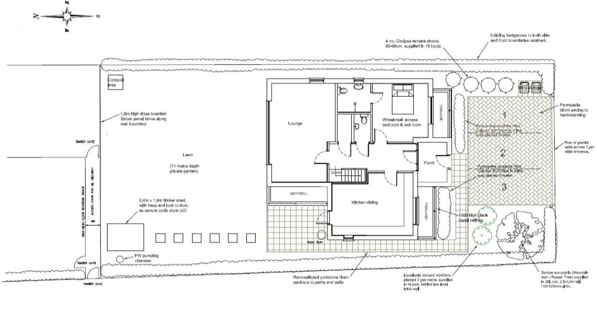
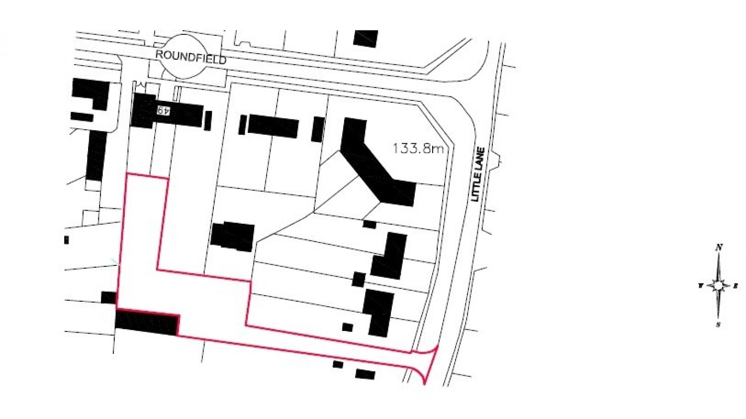
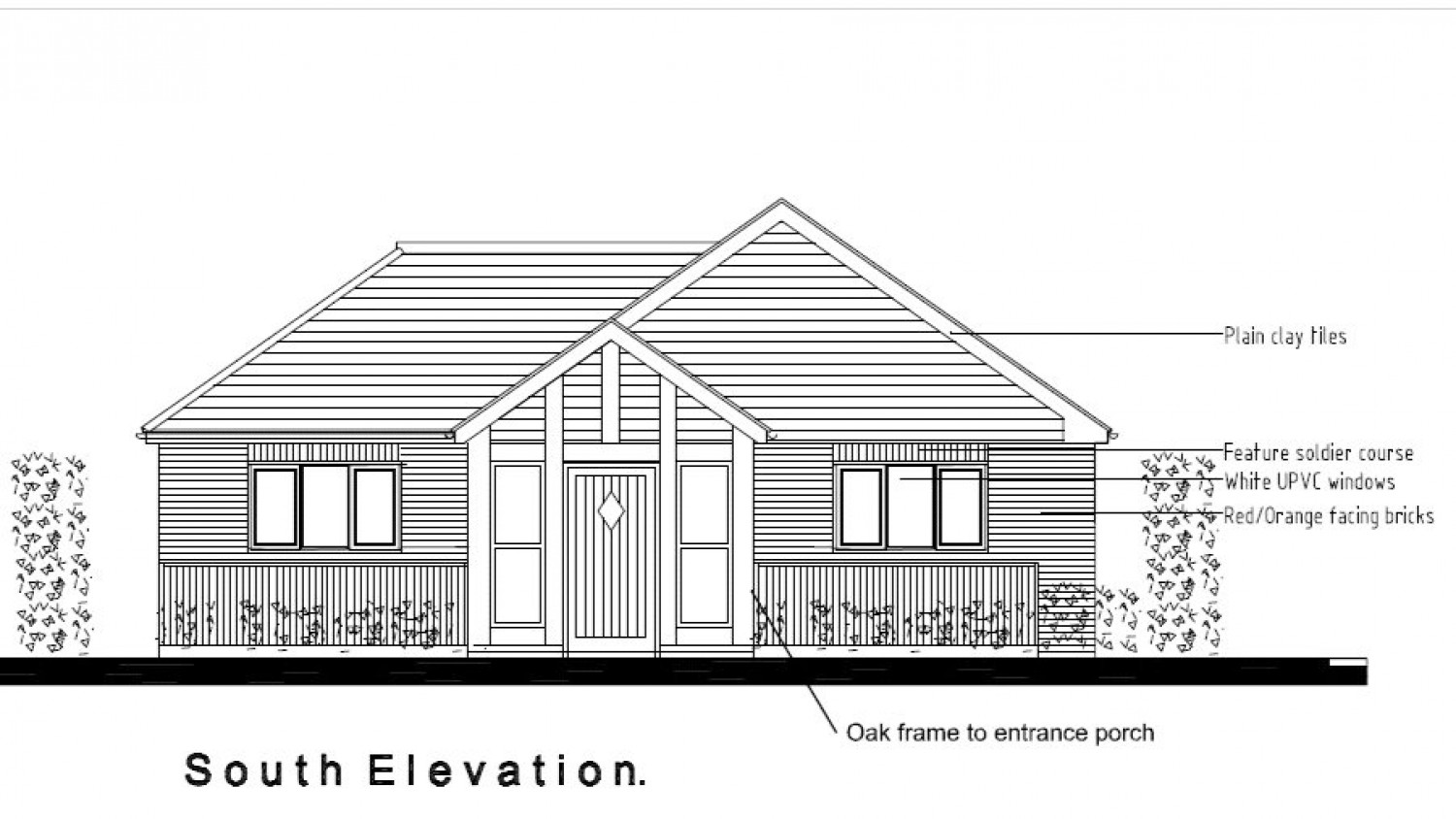
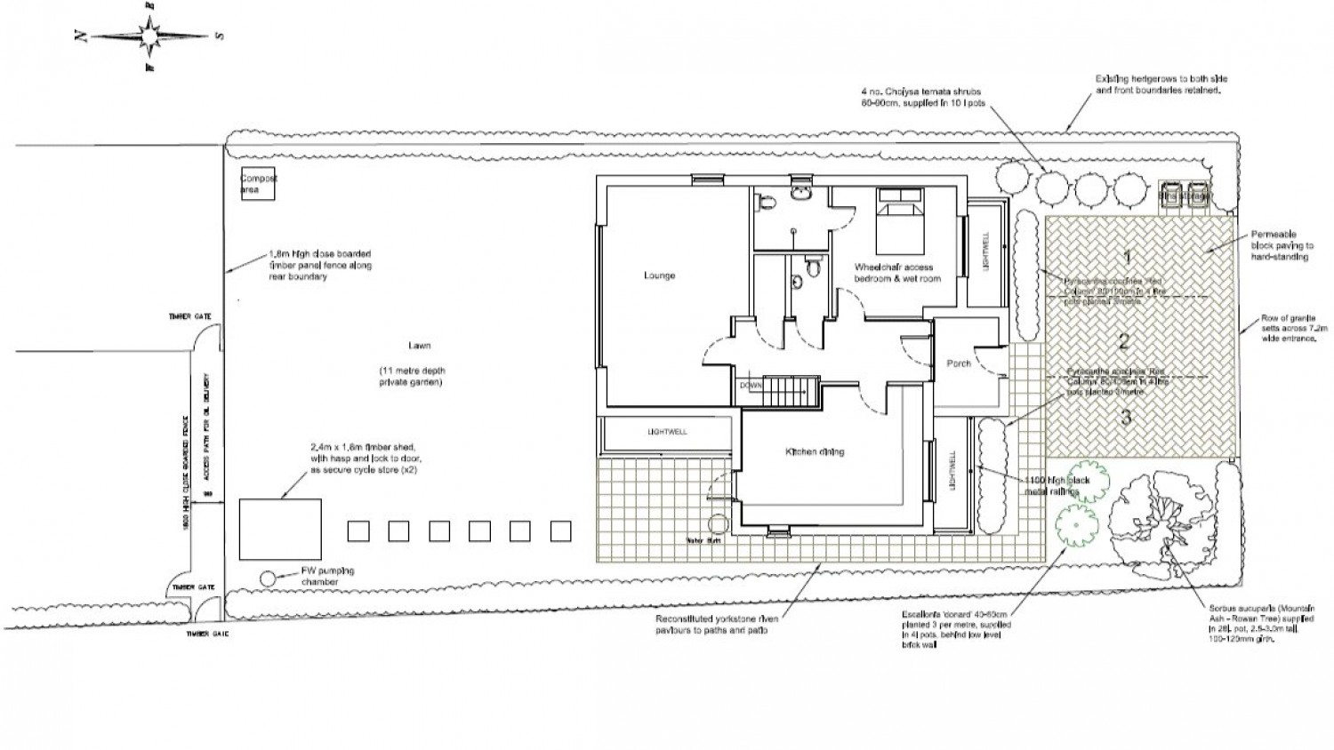
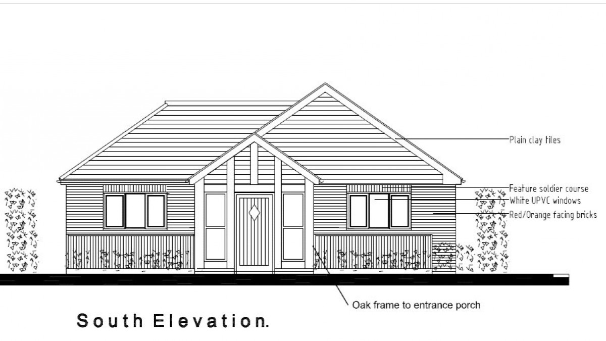
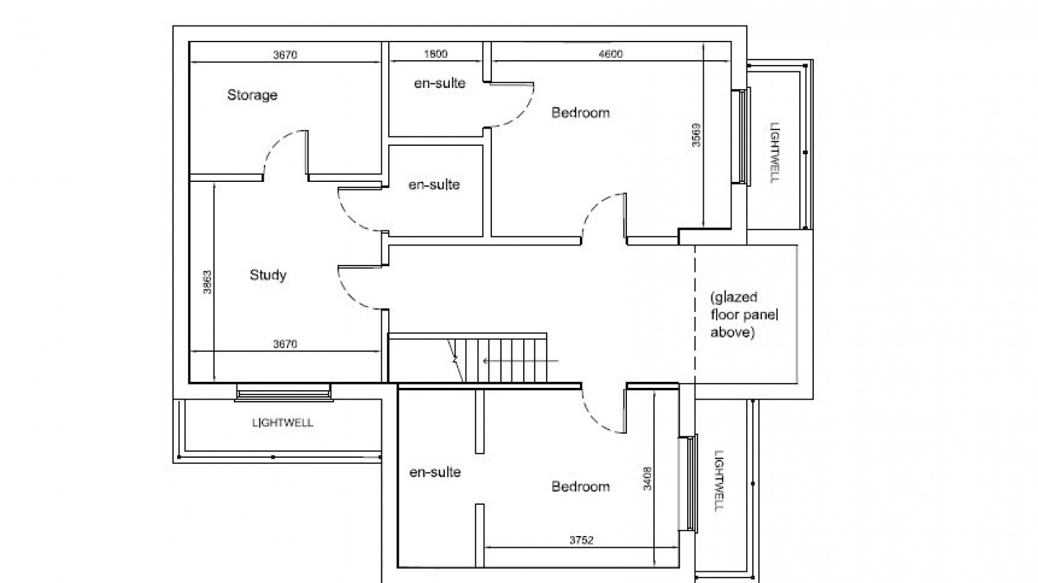
Favourably positioned in Upper Bucklebury, the plot is withing walking distance of the village shop, the well regarded primary school and a popular pub 7 restaurant. Its roughly equidistant between Reading and Newbury and a 15 minute drive to junction 12 of the M4. The property’s accommodation is located over t2o floors although it is noteworthy that one of the levels is a lower ground floor. It is anticipated that the property when complete will be worth around £700,000 Being Sold by GOTO Online Auction Starting Bids from: £340,000 Buy it now option available Please call or visit GOTO Online Auctions for more information. This property is for sale by Online Auction. The Online Modern Method of Auction is a flexible buyer friendly method of purchase. The purchaser will have 56 working days to exchange and complete once the draft contract is received by the buyer’s solicitor (or 10 working days after receipt of the buyer’s premium, whichever is earlier). Allowing the additional time to exchange and complete on the property means interested parties can proceed with traditional residential finance. Upon close of a successful auction or if the vendor accepts an offer during the auction, the buyer with be required to put down a non-refundable reservation fee. The fee will be a fixed fee including the Vat, this secures the transaction and takes the property off the market. The buyer will be required to agree to our terms and conditions prior to solicitors being instructed. Copies of the Reservation form and all terms and conditions can be found on the online Auction website or requested from our Auction Department. Please note this property is subject to an undisclosed Reserve Price which is typically no more than 10% in excess of the Starting Bid. Both the Starting Bid and Reserve Price can be subject to change. Our primary duty of care is to the vendor. Terms and conditions apply to the Modern Method of Auction, which is operated by GOTO Auctions. To book a viewing visit Parkers Estate agents General Information: Auctioneer's Comments This property is for sale by Online Auction which is a flexible and buyer friendly method of purchase. The purchaser will not be exchanging contracts on the fall of the virtual hammer, but will be given 56 working days in which to complete the transaction, from the date the Draft Contract are issued by the seller’s solicitor. By giving a buyer time to exchange contracts on the property, means normal residential finance can be arranged. The Buyer’s Premium secures the transaction and takes the property off the market. Fees paid to the Auctioneer may be considered as part of the chargeable consideration for the property and be included in the calculation for stamp duty liability. Further clarification on this must be sought from your legal representative. The buyer will be required to sign a Reservation form to confirm acceptance of terms prior to solicitors being instructed. Copies of the Reservation form and all terms and conditions can be found in the Info Pack which can be downloaded for free from our website or requested from our Auction Department. Upon close of a successful auction or if the vendor accepts an offer during the auction, the buyer will be required to make payment of a non-refundable Buyer’s Premium of 6% of the purchase price including VAT and a Legal Pack fee of £396 including VAT. This secures the transaction and takes the property off the market. The Buyer’s Premium and administration charge are in addition to the final negotiated selling price. Buyer Fees There are no other fees or charges payable to the Auctioneer however, there are other costs to consider such as: Stamp Duty Land Tax (SDLT) is applicable if you buy a property or land over a certain price in England, Wales or Northern Ireland. Pleaseclick herefor more information.


Additional Information
Tenure:
Freehold

Mortgage calculator

Calculate Your Stamp Duty
£
Results
Stamp Duty To Pay:
Effective Rate:
Tax Band % Taxable Sum Tax

Roundfield, Upper Bucklebury, Reading, Berkshire, RG7

Struggling to find a property? Get in touch and we'll help you find your ideal property.