Repton Crescent, Earley, Reading, Berkshire, RG6

£550,000 | Available

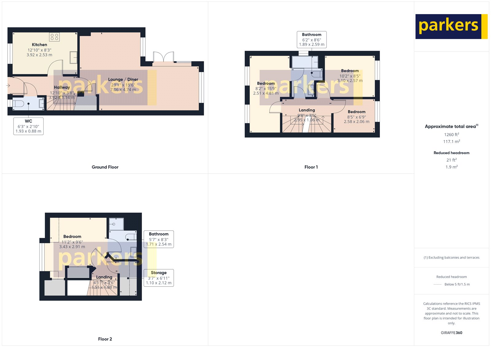
4 bedroom House For Sale

or call 0118 935 1212
Standout Features

Property Description

A semi-detached family home located in a highly sought-after neighbourhood built by Cala Homes. This spacious 4-bedroom house boasts a modern interior with high-quality finishes throughout. The property features a lovely garden, perfect for relaxing or entertaining guests. The bright and airy living spaces offer ample room for family gatherings and everyday living. The property also benefits from off-street parking, providing convenience for residents. Situated in a desirable location, this home offers easy access to local amenities, schools, and transport links, making it an ideal choice for families looking for a comfortable and convenient living space. Don't miss out on this fantastic opportunity to make this beautiful property your new home. Contact us today to arrange a viewing and experience the charm and comfort this property has to offer.


Additional Information
Tenure:
Freehold
Council Tax Band:
D

Mortgage calculator

Calculate Your Stamp Duty
£
Results
Stamp Duty To Pay:
Effective Rate:
Tax Band % Taxable Sum Tax

Repton Crescent, Earley, Reading, Berkshire, RG6

Struggling to find a property? Get in touch and we'll help you find your ideal property.