Tilehurst Road, Reading, RG30

Offers over £425,000 | SSTC

4 bedroom House Sold STC

or call 0118 9422112
Standout Features

Property Description

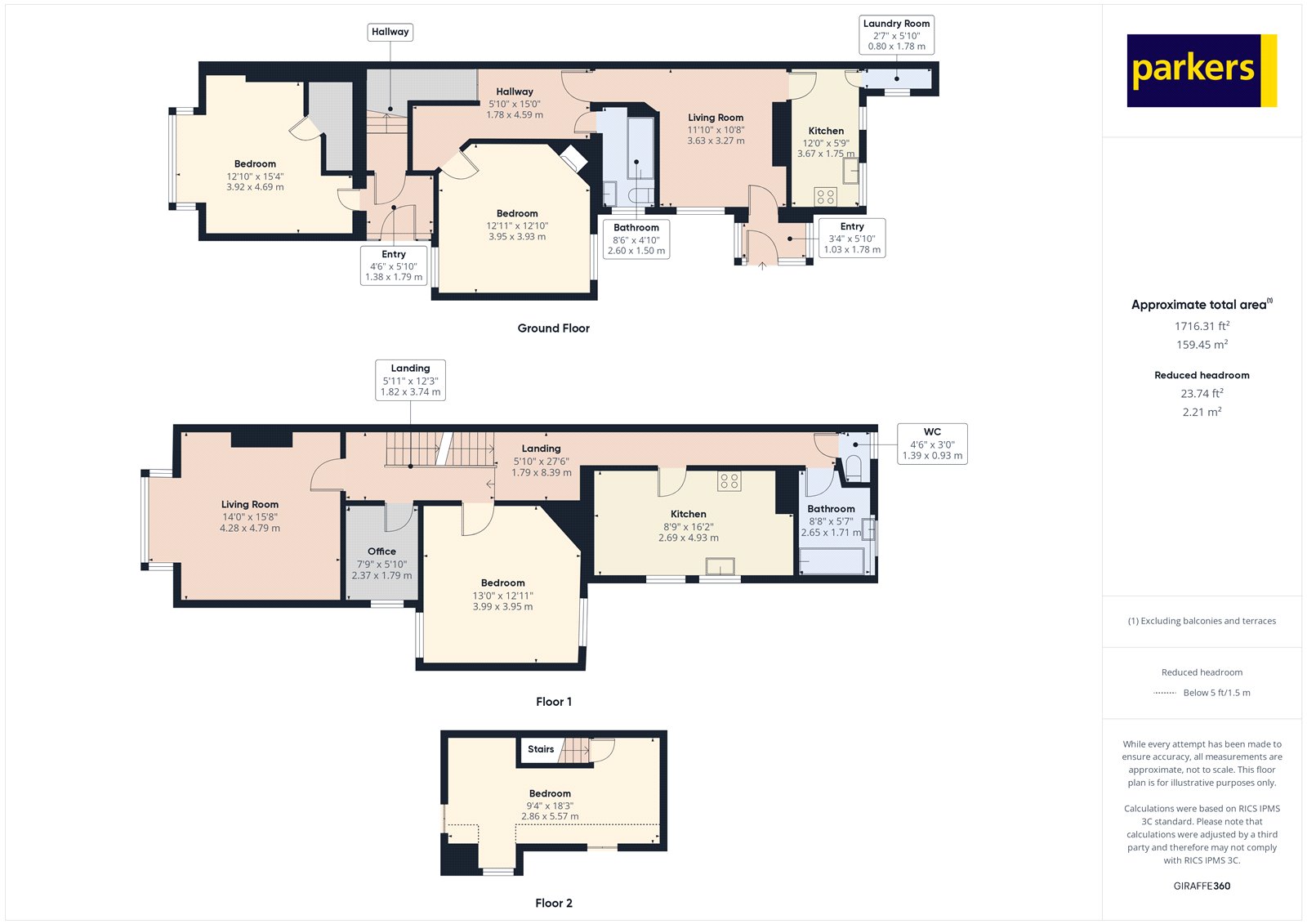
This unique 1,700+ sq. ft. currently let out as three bed & one bed maisonette, making it an excellent investment opportunity or a fantastic family home with versatile living space but in need of updating. Set over three floors the ground floor has a hall small bedsit to the front, entrance hall which leads upstairs to the first floor which has a 31' landing and leads to a 14' Bay fronted Living Room, 20' Kitchen, two bedrooms, cloakroom and further bathroom. Stairs off the Living Room lead to the second floor which is currently used as a bedroom, there is also additional eaves storage. Outside there is off road parking located to the rear of the property. The three bed is currently achieving - £1000pcm (better condition could fetch up to £2500pcm). Council Tax Band C (Reading Borough Council) £2,104.42 The refurbished, one-bedroom ground-floor maisonette offers comfortable living with bright living room upon entry, kitchen with a laundry/utility room off that. The large hallway offers additional storage and a spacious bedroom. - Floorplan for maisonette is on Ground floor plan. - EPC for maisonette - Current 58 (D) - Potential - 74 (C) The maisonette is currently achieving - £950pcm. Externally a private garden for the maisonette and dedicated parking spaces for both dwellings. This property presents an exciting refurbishment opportunity to create a large family home or continue as a rental investment, with both dwellings currently tenanted. At the time of Instruction we have been advised by the vendors of the following information: Council Tax Band A (Reading Borough Council) £1,578.32 P/A. Services available – Electric, gas & main drainage The above information may be subject to change during the transaction period.


Additional Information
Tenure:
Freehold
Council Tax Band:
C

Utilities
Electricity:
Mains Supply
Sewerage:
Mains Supply
Water:
Heating:
Central

Mortgage calculator

Calculate Your Stamp Duty
£
Results
Stamp Duty To Pay:
Effective Rate:
Tax Band % Taxable Sum Tax

Tilehurst Road, Reading, RG30

Struggling to find a property? Get in touch and we'll help you find your ideal property.