Woodavon Gardens, Thatcham, Berkshire, RG18

£650,000 | SSTC

4 bedroom House Sold STC

or call 01635 200909
Standout Features

Property Description

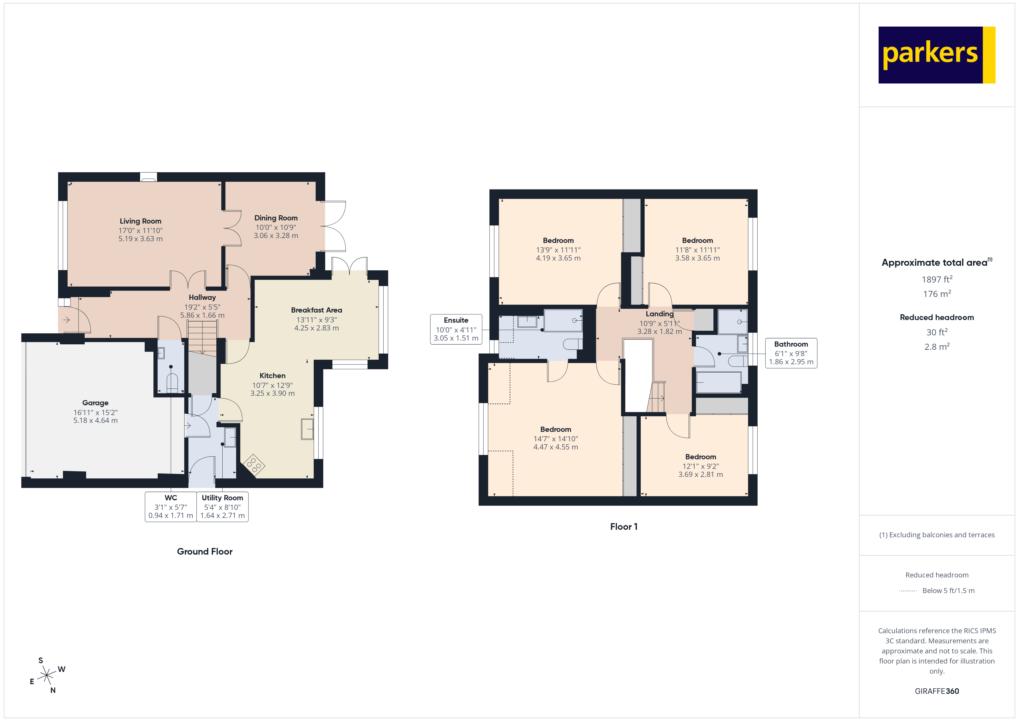
As you step inside, a welcoming and spacious entrance hallway sets the tone for the rest of the property. From here, elegant double doors open into a bright and airy living room, featuring a central gas fireplace and ample space for relaxing or entertaining. Further double doors lead through to the formal dining room, creating an excellent flow between the main reception areas. Patio doors from the dining room open directly onto the west-facing garden, allowing natural light to flood the space and providing a seamless transition between indoor and outdoor living during the warmer months. Positioned toward the rear of the home is a well-planned open-plan kitchen, thoughtfully designed with a dedicated breakfast area - perfect for casual dining or morning coffee while enjoying views of the garden. Additional doors lead outside, offering convenient access to the outdoor space. Adjoining the kitchen is a practical utility room with side access and direct entry into the integral double garage, providing secure parking and excellent storage. A downstairs cloakroom completes the ground floor. Upstairs, a spacious wrap-around landing leads to all four double bedrooms. The impressive master bedroom features fitted wardrobes and a recently updated en-suite shower room, offering a calm and comfortable retreat. The three further double bedrooms are served by a modernised family bathroom, finished to a high standard and designed with family living in mind. The west-facing rear garden is a standout feature - generous in size, wonderfully private, and ideal for outdoor dining, children’s play, or gardening enthusiasts. Beyond the established garden wall lies an additional strip of land belonging to the property, providing further space and long-term flexibility. The home is also perfectly positioned within the catchment area for the highly regarded Kennet Secondary School, making it an excellent choice for families prioritising quality education. These particulars are a general guide only. They do not form part of any contract. In accordance with anti–money laundering (AML) regulations, all buyers are required to undergo identity and compliance checks. Please note that an AML check fee of £25.00 will be charged to each buyer as part of this process. This fee is non-refundable and payable prior to the release of sales memorandums or progression of any transaction.


Additional Information
Tenure:
Freehold
Council Tax Band:
F

Utilities
Electricity:
Mains Supply
Sewerage:
Mains Supply
Water:
Heating:
Gas Central

Mortgage calculator

Calculate Your Stamp Duty
£
Results
Stamp Duty To Pay:
Effective Rate:
Tax Band % Taxable Sum Tax

Woodavon Gardens, Thatcham, Berkshire, RG18

Struggling to find a property? Get in touch and we'll help you find your ideal property.