Polsted Road, Tilehurst, Reading, Berkshire, RG31

Offers over £450,000 | SSTC

4 bedroom House Sold STC

or call 0118 9422112
Standout Features

Property Description

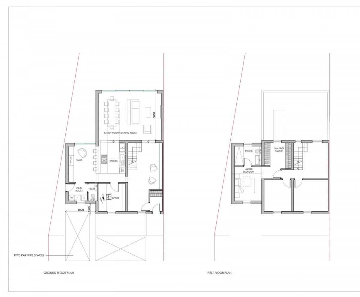
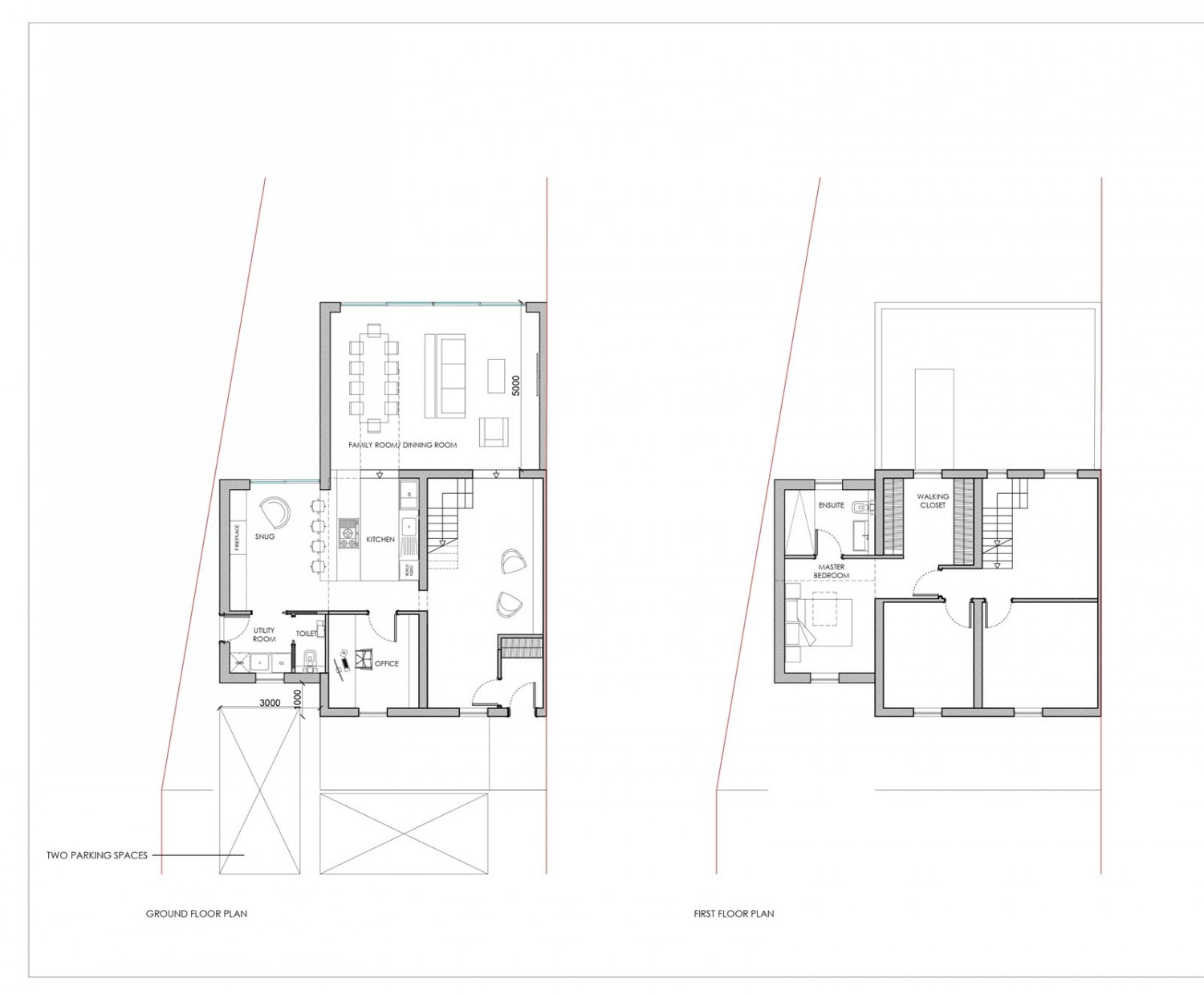
Set over three floors the accommodation includes: an entrance porch, a living room, a dining room and a kitchen. To the first floor there are 3 double bedrooms and a family bathroom. To the third floor there is a further double bedroom which has a dressing area and an en-suite. Outside to the rear there is an enclosed garden with a patio area to entertain, a 65ft lawn and side access. To the front is driveway parking to the side of the property and off-street parking. Polsted Road is a private road which has easy access to a variety of amenities which include; popular local schools, regular bus services into Reading Town centre, Tilehurst Train Station, Waitrose supermarket and Tilehurst Village shops. AGENTS NOTE: The property has lapsed planning permission. Plans expired June 2022. At the time of Instruction we have been advised by the vendors of the following information: £50 per year for private road maintenance. Services available – Gas central heating, main drainage, electric Council Tax Band C (Reading Borough Council) £1,707.57. The above information may be subject to change during the transaction period In accordance with anti–money laundering (AML) regulations, all buyers are required to undergo identity and compliance checks. Please note that an AML check fee of £25.00 will be charged to each buyer as part of this process. This fee is non-refundable and payable prior to the release of sales memorandums or progression of any transaction.


Additional Information
Tenure:
Freehold

Mortgage calculator

Calculate Your Stamp Duty
£
Results
Stamp Duty To Pay:
Effective Rate:
Tax Band % Taxable Sum Tax

Polsted Road, Tilehurst, Reading, Berkshire, RG31

Struggling to find a property? Get in touch and we'll help you find your ideal property.