Westwood Road, Tilehurst, Reading, Berkshire, RG31

Offers over £650,000 | SSTC

5 bedroom House Sold STC

or call 0118 9422112
Standout Features

Property Description

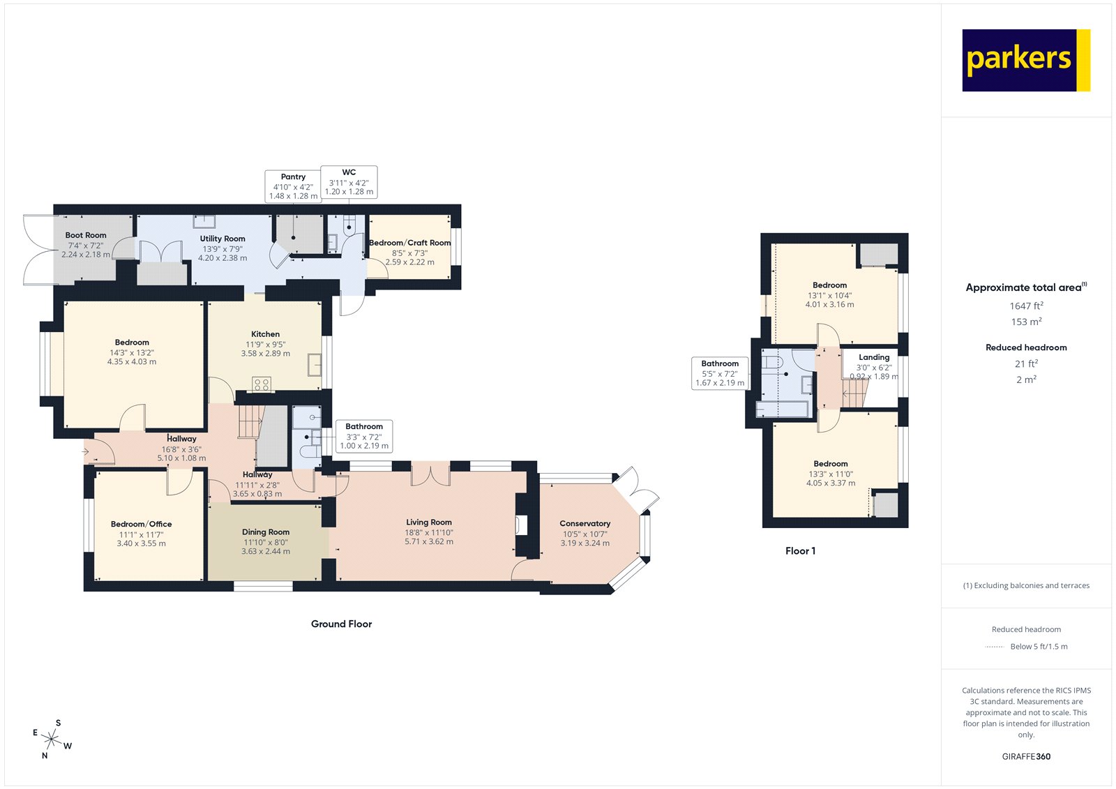
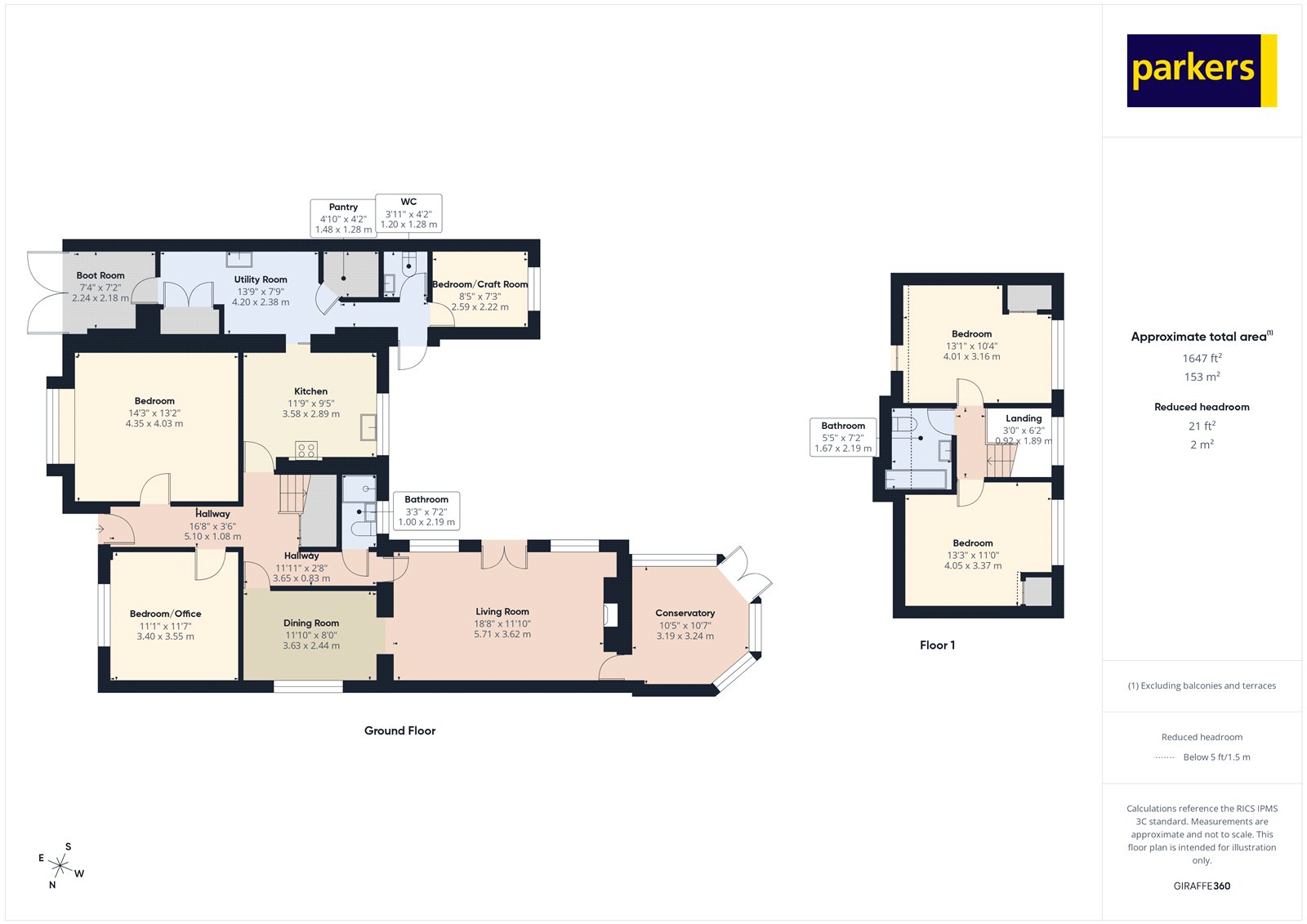
The main living accommodation comprises a welcoming entrance hall, a generous living room with adjoining conservatory overlooking the garden, a separate dining room, and a well-appointed kitchen. The kitchen is complemented by a utility room with internal access through to the boot room, creating a practical and convenient layout, particularly for families and pet owners. A pantry and ground floor WC further enhance the practicality of the space. Upstairs, the first floor features two further bedrooms and a family bathroom, with well-balanced room sizes and useful landing space. Externally, the property truly excels with an impressive 120ft rear garden, offering a wonderful private setting ideal for families and entertaining alike. Immediately adjoining the house is a generous patio area perfect for outdoor dining and summer gatherings, leading onto a substantial lawn providing excellent space for children’s play or keen gardeners. To the rear and side, there is a workshop shed and additional outbuildings, offering superb storage or hobby space, all enclosed and enjoying a high degree of privacy. Utilities - gas/electric/mains water Council Tax Band D (Reading Borough Council)£2,903.86 P/A The above information may be subject to change during the transaction period. These particulars are a general guide only. They do not form part of any contract. Services, systems and appliances have not been tested. In accordance with anti–money laundering (AML) regulations, all buyers are required to undergo identity and compliance checks. Please note that an AML check fee of £25.00 will be charged to each buyer as part of this process. This fee is non-refundable and payable prior to the release of sales memorandums or progression of any transaction.


Additional Information
Tenure:
Freehold

Utilities
Electricity:
Mains Supply
Water:
Heating:
Gas Central

Mortgage calculator

Calculate Your Stamp Duty
£
Results
Stamp Duty To Pay:
Effective Rate:
Tax Band % Taxable Sum Tax

Westwood Road, Tilehurst, Reading, Berkshire, RG31

Struggling to find a property? Get in touch and we'll help you find your ideal property.